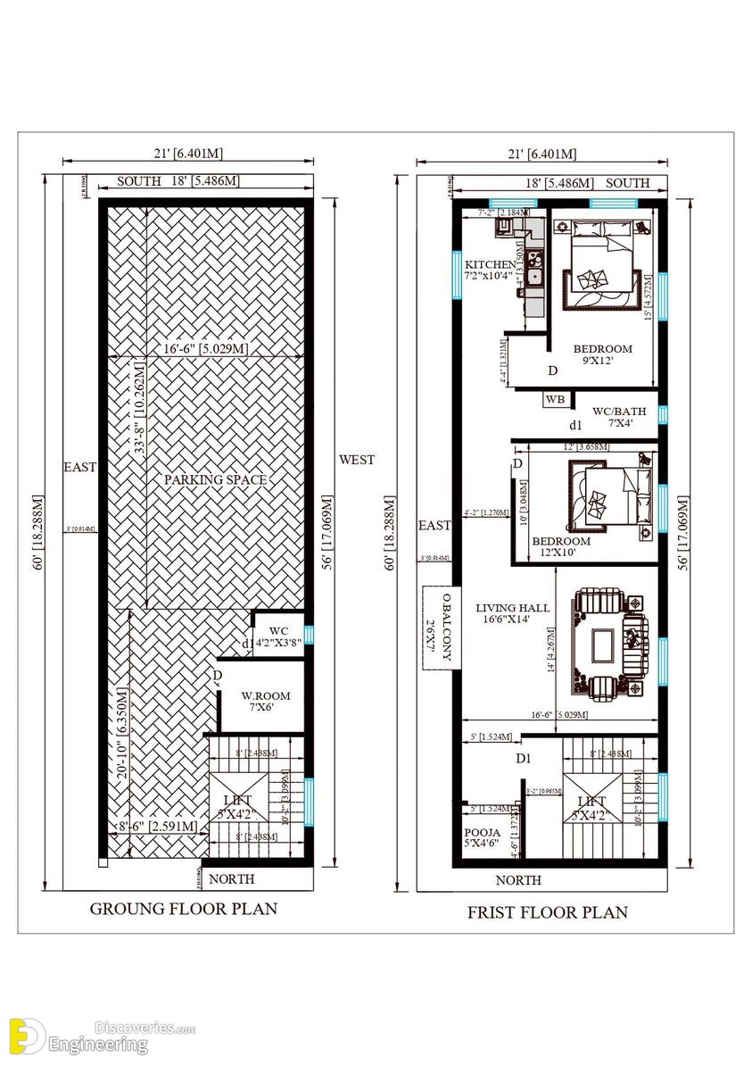
Up next 30+ Never-Before-Seen Masterpieces Made From Bending Steel Bars! Share 0 0 26 0 0 0 0 Author Engineering Discoveries Fantastic House Plan Ideas Choose Best For Your Area! Click Here To See Beautiful 2D Floor Plan Ideas Share this