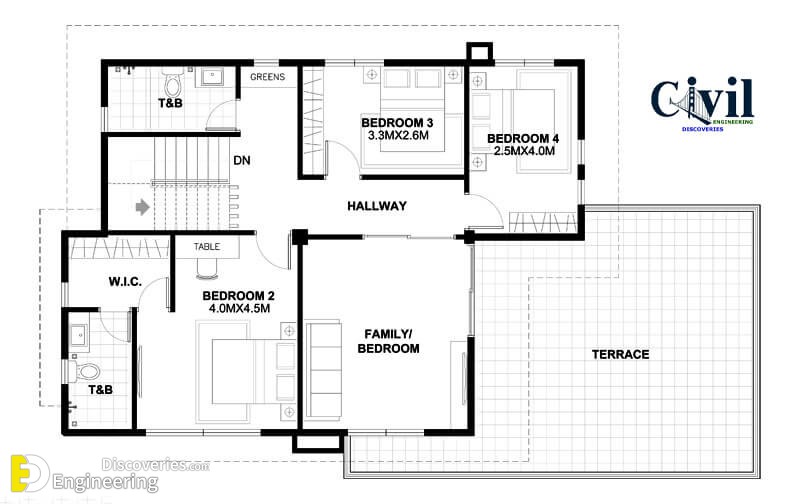
Up next How To Make Beautiful Decorative With Stones 174 Shares 0 0 489 0 0 0 0 Author Engineering Discoveries The house has two-storey house 4 toilets and bath 4 bathrooms living rooms kitchen and dining porch balcony garage Click Here To See More House Design With Plans Share this