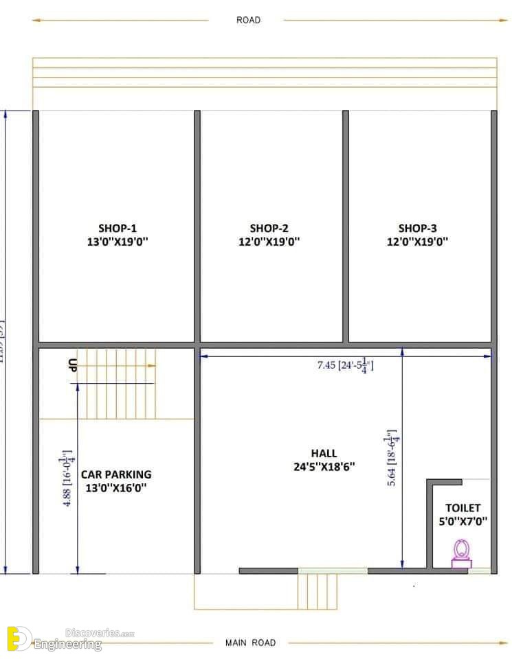
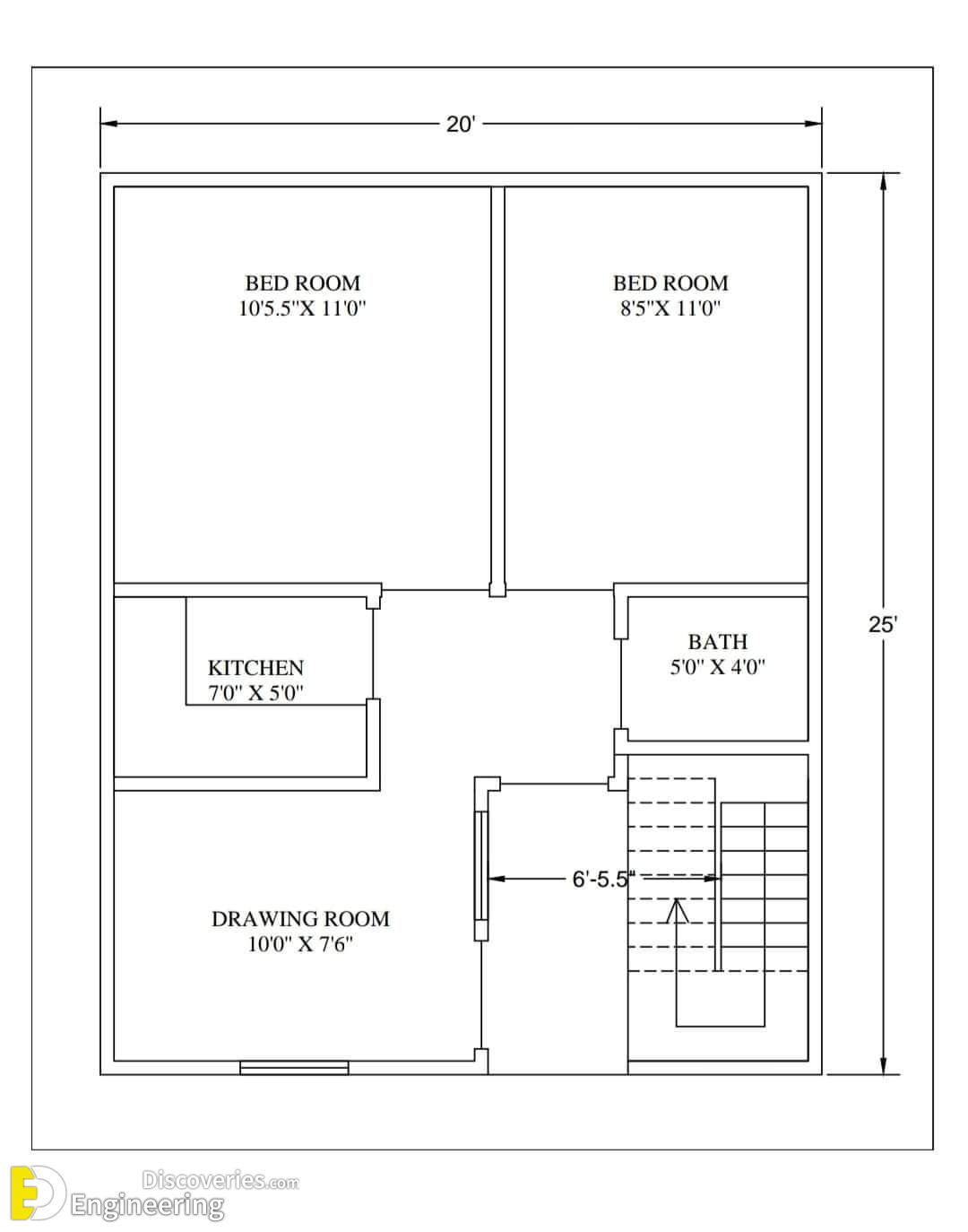
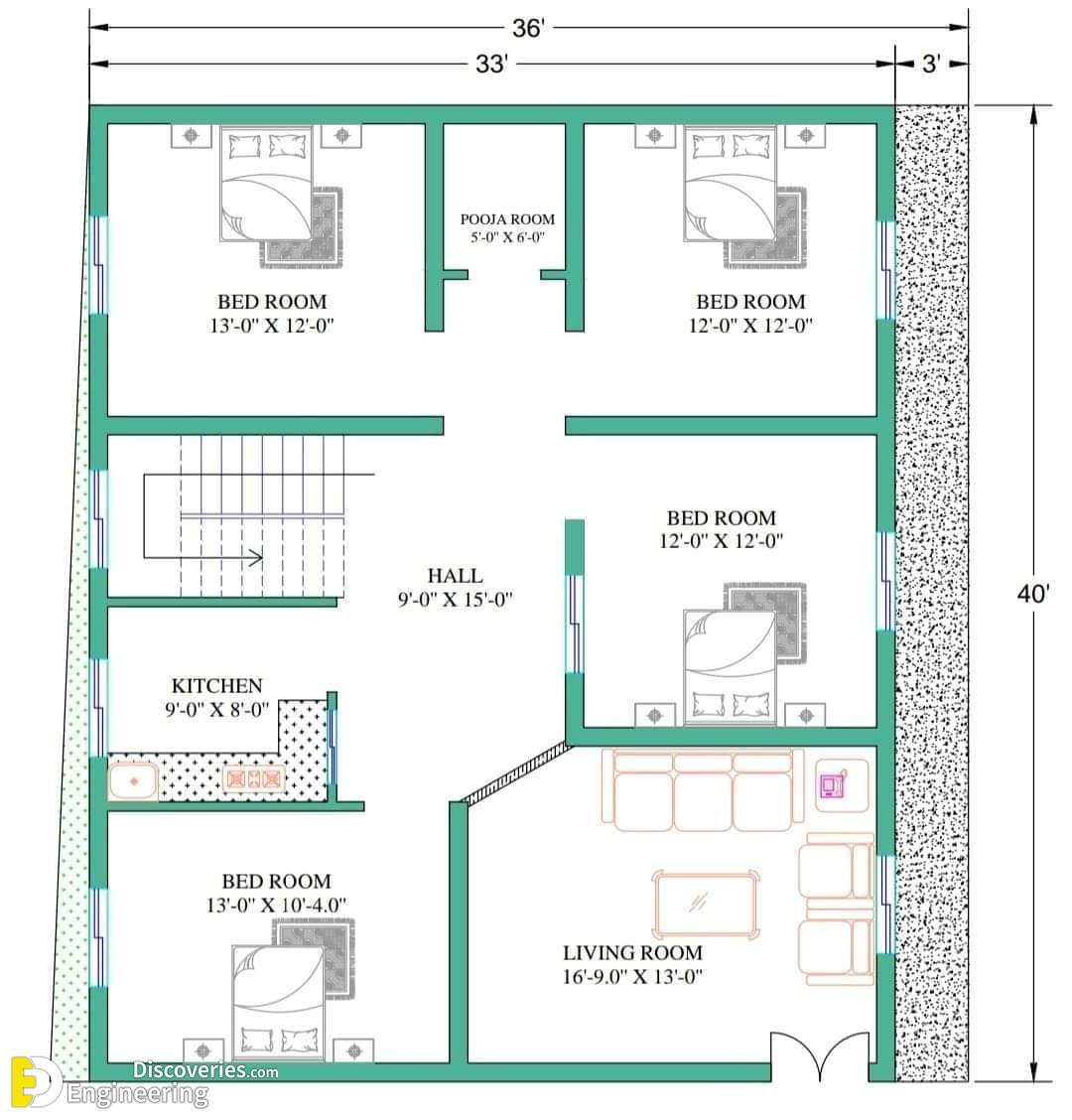
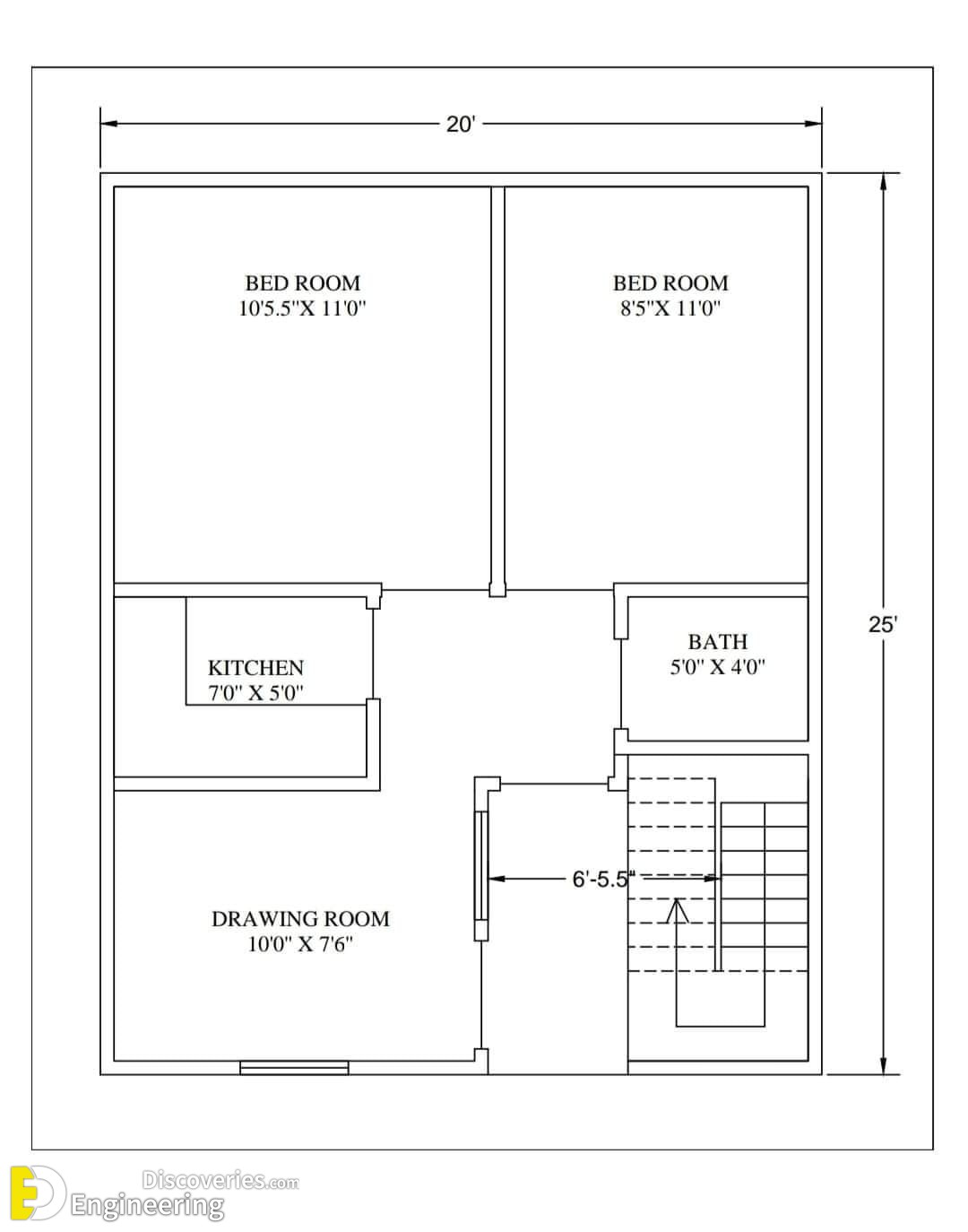
As you’re sifting through house plans looking to find the perfect one, you might find it a little difficult to imagine the house of your dreams just from sketches and schematic floor plans. Photos speak a thousand words, and when you can visualize all that a house can be from the inside and out, it makes it that much easier to find the one that’s right for you. We know that words can only say so much about a design, which is why we put a list together of some of the most beautiful house plans.








































