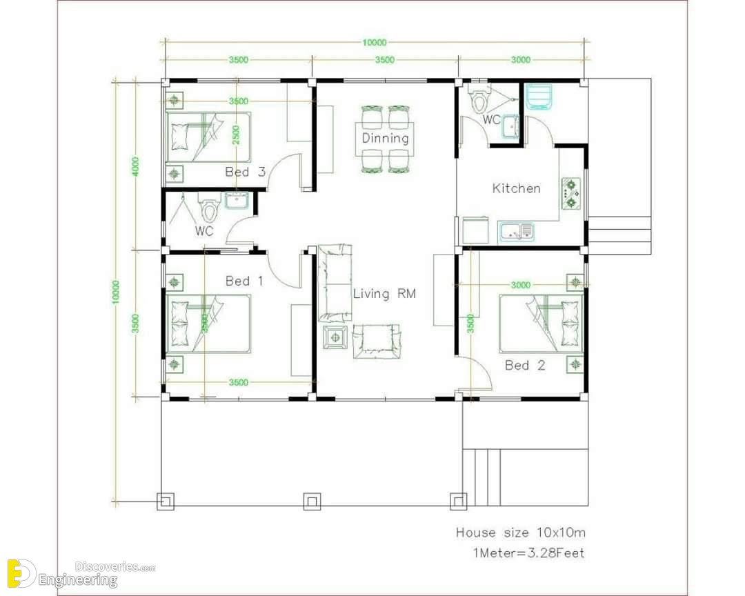
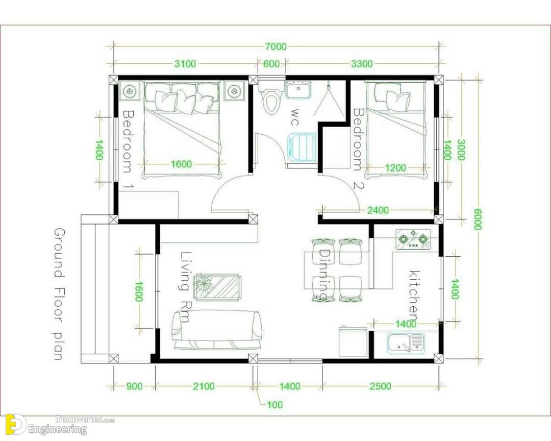
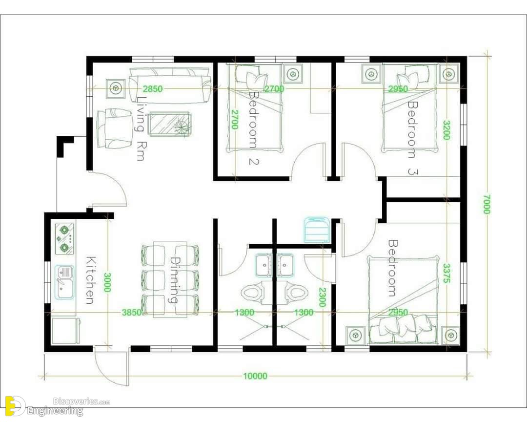
A house plan is a set of construction or working drawings (sometimes called blueprints) that define all the construction specifications of a residential house such as the dimensions, materials, layouts, installation methods, and techniques. Check out 30 unique house plan ideas for different areas.






























